Description
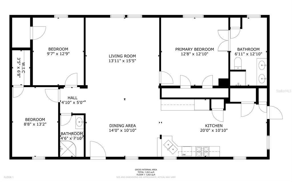
*OWN YOUR OWN LAND*NO LOT RENT*FULLY FENCED YARD w/Side Gate* LOW HOA ONLY $30/MONTH ($360/YEAR) (HOA COVERS ROAD AND COMMON AREA LAWN),HVAC 2022, WATER HEATER 2022 *ROOF 2010 *LOW UTILITIES*Beautifully maintained 3-bedroom, 2-bath manufactured home located in the desirable Mission Oaks subdivision of New Smyrna Beach, situated on a .19-acre lot (82.5 x 100) offering privacy and space. Inside, the home features a split floor plan for added privacy with a spacious living and dining combination ideal for entertaining. The large primary bedroom includes an en-suite bathroom with a walk-in shower, double sinks, and new cabinetry. All three bedrooms are generously sized and feature walk-in closets. The eat-in kitchen offers abundant cabinetry, a large pantry, stainless steel dishwasher, and stainless steel gas range. A full-size washer and dryer convey. Ceiling fans are installed throughout the home. Outside, enjoy the large fully fenced backyard complete with an outdoor shed and water hookup nearby. Plenty of space to park a boat, RV, golf cart, and multiple vehicles bring all your toys. Conveniently located approximately 13 minutes (5.6 miles) to the beach and close to shopping, banks, restaurants, and more. Schedule your private tour today this home offers space, updates, and location, and will not last long. All information recorded in the MLS is intended to be accurate but cannot be guaranteed, buyer and buyer's agent are advised to verify all information.
-
2BEDS
-
0.19ACRES
-
2BATHS
-
01/2 BATHS
-
1,323SQFT
-
$162$/SQFT
School Ratings & Info
Description
*OWN YOUR OWN LAND*NO LOT RENT*FULLY FENCED YARD w/Side Gate* LOW HOA ONLY $30/MONTH ($360/YEAR) (HOA COVERS ROAD AND COMMON AREA LAWN),HVAC 2022, WATER HEATER 2022 *ROOF 2010 *LOW UTILITIES*Beautifully maintained 3-bedroom, 2-bath manufactured home located in the desirable Mission Oaks subdivision of New Smyrna Beach, situated on a .19-acre lot (82.5 x 100) offering privacy and space. Inside, the home features a split floor plan for added privacy with a spacious living and dining combination ideal for entertaining. The large primary bedroom includes an en-suite bathroom with a walk-in shower, double sinks, and new cabinetry. All three bedrooms are generously sized and feature walk-in closets. The eat-in kitchen offers abundant cabinetry, a large pantry, stainless steel dishwasher, and stainless steel gas range. A full-size washer and dryer convey. Ceiling fans are installed throughout the home. Outside, enjoy the large fully fenced backyard complete with an outdoor shed and water hookup nearby. Plenty of space to park a boat, RV, golf cart, and multiple vehicles bring all your toys. Conveniently located approximately 13 minutes (5.6 miles) to the beach and close to shopping, banks, restaurants, and more. Schedule your private tour today this home offers space, updates, and location, and will not last long. All information recorded in the MLS is intended to be accurate but cannot be guaranteed, buyer and buyer's agent are advised to verify all information.
© 2026 My Florida Regional MLS DBA Stellar MLS. All rights reserved. All listings displayed pursuant to IDX. All listing information is deemed reliable but not guaranteed and should be independently verified through personal inspection by appropriate professionals. Listings displayed on this website may be subject to prior sale or removal from sale; availability of any listing should always be independently verified. Listing information is provided for consumers personal, non-commercial use, solely to identify potential properties for potential purchase; all other use is strictly prohibited and may violate relevant federal and state law. Data last updated 2026-03-07T22:45:06.017.
